Меню
8 (800) 350-02-05
(Бесплатно по России)
8 (499) 350-10-59
(Москва)
8 (8172) 58-01-05
(Вологда)

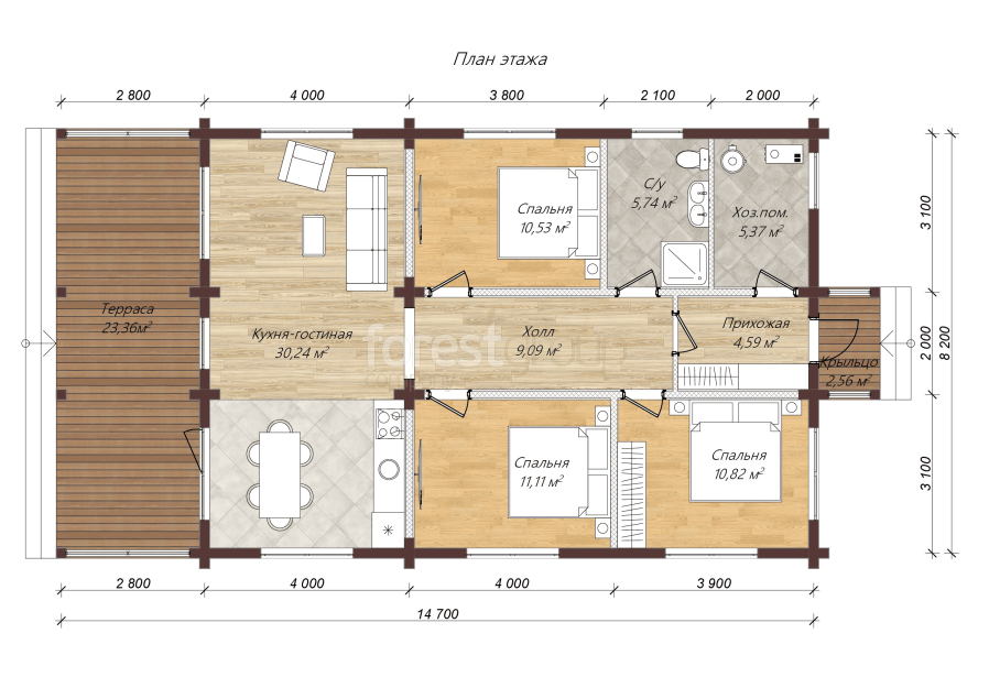
Проект Дома П-1004

Обратно в каталог
Общая площадь:
113 м2
Количество спален:
3
Количество санузлов:
1
Материал:
Термированный брус
1 этаж
В любой из наших проектов можно внести изменения внутренней планировки и дополнений к внешнему ввиду.
Общая площадь:
113 м2
Количество спален:
3
Количество санузлов:
1
Материал:
Термированный брус
План 1 этажа
Стоимость дома рассчитывается
По запросу
Можно в ипотеку
Можно
в ипотеку
Материнский капитал
Материнский
капитал
Гарантия на работы
Гарантия
на работы
Вологодский лес
Вологодский
лес
Вышлем смету на e-mail
Обзор наших домов
Рассчитать стоимость проекта
Заполните все поля и наш менеджер свяжется с вами в ближайшее время.
Отправить заявку
Нажимая кнопку, я принимаю
политику обработки персональных данных.
Дневник
Строительства
Видеообзоры
наших домов
Все новости
Финский каркасный дом. Быстровозводимые заводские панели собственного производства
Популярный проект из клеёного бруса. Первый этап. Обзор.
Быстровозводимый модульный дом для постоянного проживания.
Дом из оцилиндрованного бревна по проекту Ц-1004
Ц-679 дом из оцилиндрованного бревна 240мм
Похожие проекты
Проект Дома П-1002 КОМПЛЕКТАЦИЯ: фундамент+крыша под ключ

- Проект;
- Фундамент: ЖБ забивные сваи 200*200*3м;
- Кровля металлочерепица Grand Line + утепление 200мм;
- Монтаж;
- Доставка;

По запросу
№ 701
12.5х11.2
99 м2
Проект Дома П-750 КОМПЛЕКТАЦИЯ: ФУНДАМЕНТ + КРОВЛЯ МЕТАЛЛОЧЕРЕПИЦА

В стоимость включено:

- Проект;
- Фундамент: жб забивные сваи 200*200*3м;
- Профилированный брус камерной сушки сечение 140*190мм;
- Кровля металлочерепица Grand Line 0,45 мм - шоколад;
- Доставка;
- Монтаж

По запросу
№ 750
9,5х8
133 м2
Проект Дома П-747 КОМПЛЕКТАЦИЯ: ФУНДАМЕНТ + КРОВЛЯ МЕТАЛЛОЧЕРЕПИЦА

В стоимость включено:

- Проект;
- Фундамент: жб забивные сваи 200*200*3м;
- Профилированный брус камерной сушки сечение 140*190мм;
- Кровля металлочерепица Grand Line 0,45 мм - шоколад;
- Доставка;
- Монтаж

По запросу
№ 747
13,6х9,9
178 м2
Проект Дома П-735 КОМПЛЕКТАЦИЯ: ФУНДАМЕНТ + КРОВЛЯ МЕТАЛЛОЧЕРЕПИЦА

В стоимость включено:

- Проект;
- Фундамент: жб забивные сваи 200*200*3м;
- Профилированный брус камерной сушки сечение 140*190мм;
- Кровля металлочерепица Grand Line 0,45 мм - шоколад;
- Доставка;
- Монтаж

По запросу
№ 735
13,5х12,9
192 м2
Проект Дома П-755 КОМПЛЕКТАЦИЯ: ФУНДАМЕНТ + КРОВЛЯ МЕТАЛЛОЧЕРЕПИЦА

В стоимость включено:

- Проект;
- Фундамент: жб забивные сваи 200*200*3м;
- Профилированный брус камерной сушки сечение 140*190мм;
- Кровля металлочерепица Grand Line 0,45 мм - шоколад;
- Доставка;
- Монтаж

По запросу
№ 755
14,5х10
123 м2
Проект Дома П-745 КОМПЛЕКТАЦИЯ: ФУНДАМЕНТ + КРОВЛЯ МЕТАЛЛОЧЕРЕПИЦА

В стоимость включено:

- Проект;
- Фундамент: жб забивные сваи 200*200*3м;
- Профилированный брус камерной сушки сечение 140*190мм;
- Кровля металлочерепица Grand Line 0,45 мм - шоколад;
- Доставка;
- Монтаж

По запросу
№ 745
12,6х14,7
228 м2
Проект Дома П-1010 КОМПЛЕКТАЦИЯ: фундамент+ кровля металлочерепица

- Проект;
- Фундамент: жб забивные сваи 200*200*3м;
- Оцилиндрованное бревно 220мм;
- Кровля металлочерепица Grand Line 0,45 мм;
- Доставка;
- Монтаж

По запросу
№ 1010
16.1x11.9
268.9 м2
Проект Дома П-754 КОМПЛЕКТАЦИЯ: ФУНДАМЕНТ + КРОВЛЯ МЕТАЛЛОЧЕРЕПИЦА

В стоимость включено:

- Проект;
- Фундамент: жб забивные сваи 200*200*3м;
- Профилированный брус камерной сушки сечение 140*190мм;
- Кровля металлочерепица Grand Line 0,45 мм - шоколад;
- Доставка;
- Монтаж

По запросу
№ 754
8,7х10,8
142 м2
Проект Дома П-748 КОМПЛЕКТАЦИЯ: ФУНДАМЕНТ + КРОВЛЯ МЕТАЛЛОЧЕРЕПИЦА

В стоимость включено:

- Проект;
- Фундамент: жб забивные сваи 200*200*3м;
- Профилированный брус камерной сушки сечение 140*190мм;
- Кровля металлочерепица Grand Line 0,45 мм - шоколад;
- Доставка;
- Монтаж

По запросу
№ 748
12х11,5
181 м2
Проект Дома П-743 КОМПЛЕКТАЦИЯ: ФУНДАМЕНТ + КРОВЛЯ МЕТАЛЛОЧЕРЕПИЦА
<p><b>В стоимость включено: </b></p>

<p>
- Проект;<br>
- Фундамент: жб забивные сваи 200*200*3м;<br>
- Профилированный брус камерной сушки сечение 140*190мм;<br>
- Кровля металлочерепица Grand Line 0,45 мм - шоколад;<br>
- Доставка;<br>
- Монтаж</p>
По запросу
№ 743
12,5х9
147 м2
Проект Дома П-752 КОМПЛЕКТАЦИЯ: ФУНДАМЕНТ + КРОВЛЯ МЕТАЛЛОЧЕРЕПИЦА

В стоимость включено:

- Проект;
- Фундамент: жб забивные сваи 200*200*3м;
- Профилированный брус камерной сушки сечение 140*190мм;
- Кровля металлочерепица Grand Line 0,45 мм - шоколад;
- Доставка;
- Монтаж

По запросу
№ 752
11,5х11,5
110 м2
Проект Дома П-1001 КОМПЛЕКТАЦИЯ: фундамент+крыша под ключ

- Проект;
- Фундамент: ЖБ забивные сваи 200*200*3м;
- Кровля металлочерепица Grand Line + утепление 200мм;
- Монтаж;
- Доставка;

По запросу
№ 700
8.1х12.3
78 м2
Проект Дома П-705 КОМПЛЕКТАЦИЯ: ФУНДАМЕНТ + КРОВЛЯ МЕТАЛЛОЧЕРЕПИЦА
По запросу
№ 705
9х10,5
114 м2
Проект Дома П-753 КОМПЛЕКТАЦИЯ: ФУНДАМЕНТ + КРОВЛЯ МЕТАЛЛОЧЕРЕПИЦА

В стоимость включено:

- Проект;
- Фундамент: жб забивные сваи 200*200*3м;
- Профилированный брус камерной сушки сечение 140*190мм;
- Кровля металлочерепица Grand Line 0,45 мм - шоколад;
- Доставка;
- Монтаж

По запросу
№ 753
10,7х9
148 м2
Проект Дома П-766 КОМПЛЕКТАЦИЯ: ФУНДАМЕНТ + КРОВЛЯ МЕТАЛЛОЧЕРЕПИЦА

В стоимость включено:

- Проект;
- Фундамент: жб забивные сваи 200*200*3м;
- Профилированный брус камерной сушки сечение 140*190мм;
- Кровля металлочерепица Grand Line 0,45 мм - шоколад;
- Доставка;
- Монтаж

По запросу
№ 766
13,3х9,1
210 м2
Проект Дома П-1011 КОМПЛЕКТАЦИЯ: фундамент+ кровля металлочерепица

- Проект;
- Фундамент: жб забивные сваи 200*200*3м;
- Оцилиндрованное бревно 220мм;
- Кровля металлочерепица Grand Line 0,45 мм;
- Доставка;
- Монтаж

По запросу
№ 1011
15.5x8.5
187.3 м2

Мы используем файлы cookie, а также сервис веб-аналитики Яндекс.Метрика для улучшения работы сайта, анализа трафика и персонализации контента. Продолжая использовать данный сайт, вы даете на это свое согласие. Если вы не хотите использовать файлы cookie, отключите их в настройках браузера.

Подробную информацию можно получить, нажав «Узнать больше».